勢田中古戸建4 [No.382] NEWおすすめ




















物件名 | 勢田中古戸建4 |
---|---|
物件種別 | 中古戸建 |
所在地 | 飯塚市勢田430-2 |
価 格 | 1050万 |
最寄駅/通学区域 | 小竹駅徒歩38分車7分・明治坑バス停 徒歩10分・勢田橋バス停 徒歩11分/頴田小中学校1198m |
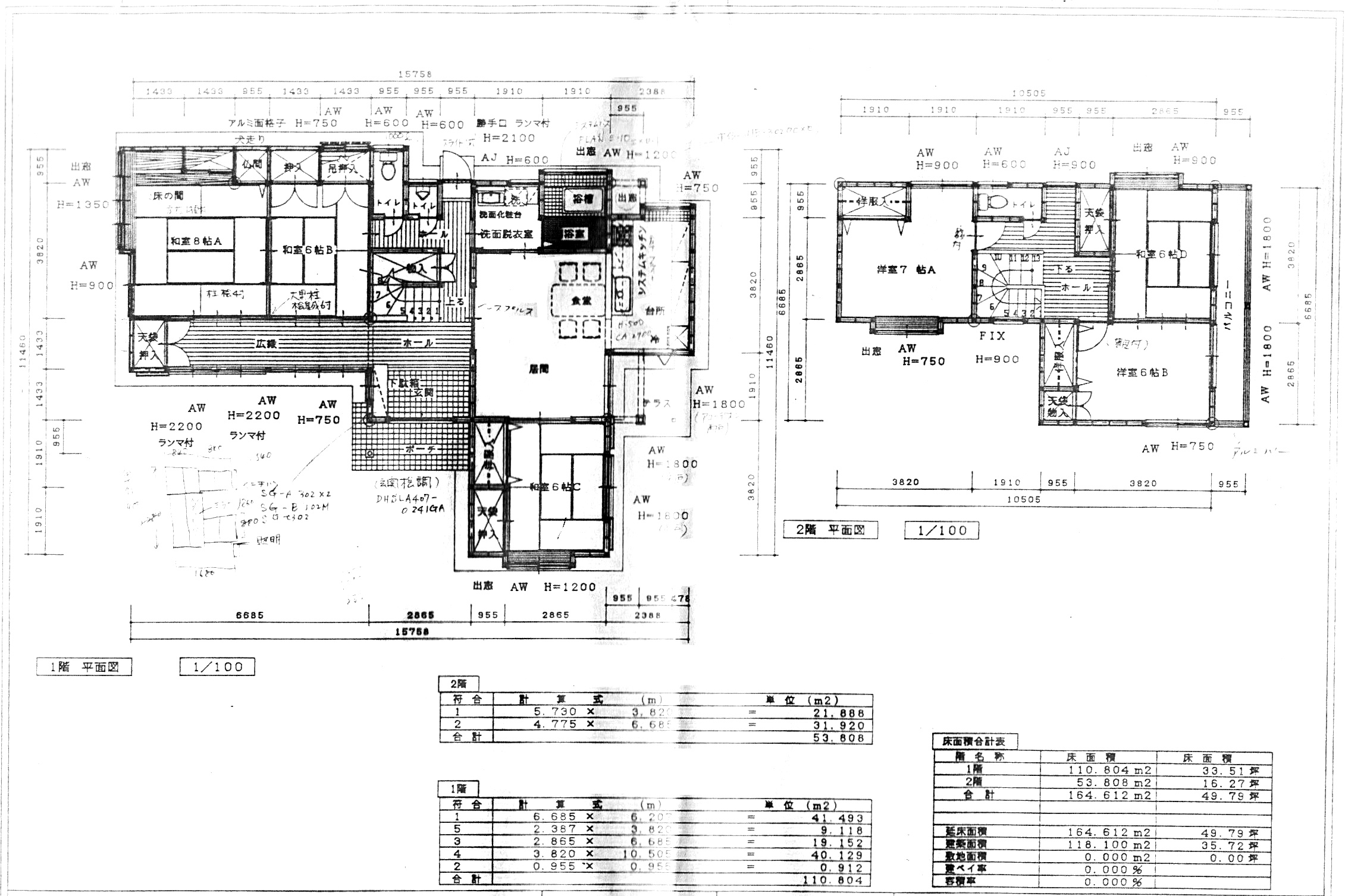
土地面積 | 575.02㎡(約173.94坪) |
建物床面積 | 164.61㎡(1階:110.81㎡ 2階:53.8㎡ )(約49.79坪) |
間取り | 6LDK |
築年月/建物構造 | 平成7年9月/木造瓦葺2階建 |
駐車場/設備 | 駐車場3台以上/上水道・ウォークインクローゼット・システムキッチン・IHクッキングヒーター・庭・屋根付き駐車場 |
権利/地目 | 所有権/宅地 |
都市計画/用途地域 | 非線引き/無指定 |
建ぺい率/容積率 | 70%/200% |
接道状況 | 北 幅4m 公道・東 幅3m 公道 |
現 況 | 空家 |
引渡時期 | 相談 |
取引形態 | 一般媒介 |
備 考 | - |
詳細情報 | 築29年広々6LDK!屋根付き駐車場+庭あり。頴田小中学校まで徒歩15分、トライアル小竹店まで車8分、頴田病院まで車4分! |
地 図 | |
地域検索 | 勢田等(旧頴田町) |