嘉麻市漆生中古戸建・診療所 [No.387]

| 物件名 | 嘉麻市漆生中古戸建・診療所 |
|---|---|
| 物件種別 | 中古戸建 |
| 所在地 | 嘉麻市漆生1576-3、1578-1、1577-1 |
| 価 格 | 2380万 |
| 最寄駅/通学区域 | 漆生バス停 徒歩1分・漆生本村バス停 徒歩7分・筑前庄内駅 徒歩50分 車7分/稲築西義務教育学校1800m |
| 土地面積 | 1086.81㎡(約328.76坪) |
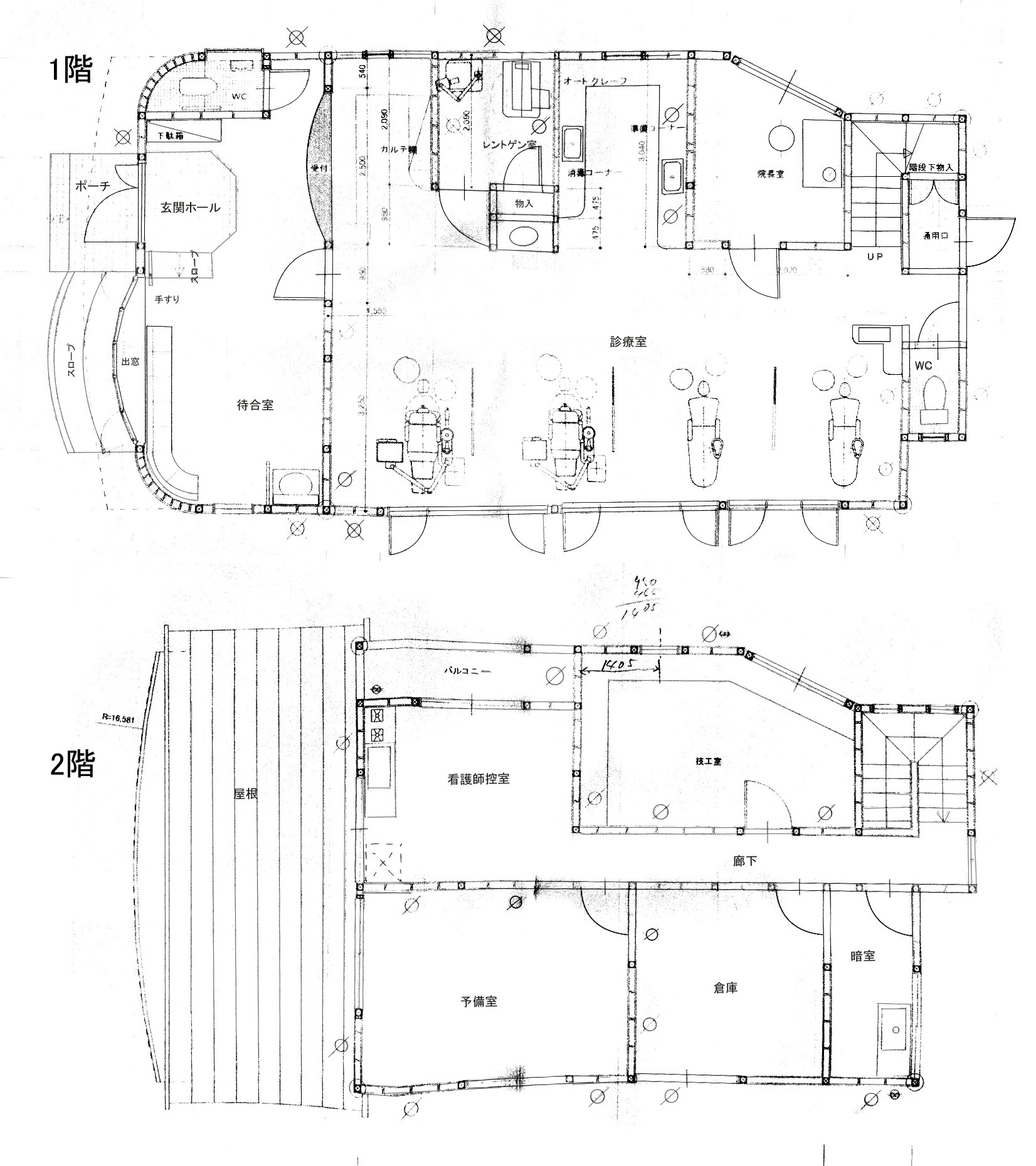
| 建物床面積 | 居宅:232.2㎡(1階:158.33㎡ 2階:73.87㎡ )(約70.24坪) 診療所:156.1㎡(1階:91.77㎡ 2階:64.33㎡ )(約47.22坪) |
| 間取り | 8LDK |
| 築年月/建物構造 | 昭和58年12月/木造瓦葺2階建 |
| 駐車場/設備 | 有 駐車場3台分以上 駐車場3台以上無料/上水道・汲取・サンルーム・車庫・ウォークインクローゼット・システムキッチン・食器洗浄乾燥機・IHクッキングヒーター・浴室乾燥機・庭・24時間換気システム・オール電化・・庭10坪以上・縁側・温水洗浄便座 |
| 権利/地目 | 所有権/宅地 |
| 都市計画/用途地域 | 非線引き/無指定 |
| 建ぺい率/容積率 | 70%/200% |
| 接道状況 | 一方 【内訳】 ●東 幅7m 公道 |
| 現 況 | 居宅は所有者居住中。診療所は空き |
| 引渡時期 | 相談 |
| 取引形態 | 一般媒介 |
| 備 考 | - |
| 詳細情報 | 居宅8LDK1軒と元歯科の診療所1軒!ゆめマートまで車3分、嘉麻市役所まで車5分♪ |
| 地 図 | |
| 地域検索 | 嘉麻市 |



